UY

Pompes d'assainissement triphasées équipées d'une turbine vortex.

Données techniques
  • ø diamètre de refoulement mm: 80 - 100
  • Type de fluide: Eaux usées
  • Granulométrie max (mm): 60 - 100
  • Valeur maximale du pH: 6-14
  • Capacité max. l/min: 1660 - 4250
  • Hauteur manométrique max. m: 11 - 23.3
  • Puissance du moteur kW: 3,0 - 15,0
  • Phase / Tension: 3-phase / 400V / 50Hz
Courbe de performance
1 O
2 O
Caractéristiques
Model Colour code curve ø diamètre de refoulement mm Type de fluide Granulométrie max (mm) Valeur maximale du pH Capacité max. l/min Hauteur manométrique max. m Puissance du moteur kW Phase / Tension Surveillance
free standing with guide rail fitting
80UY43.0 -50 TOS80UY43.0 -50 1 80 Eaux usées 80 6-14 1660 11 3,0 3-phase / 400V / 50Hz Double capteur de fuite (chambre des joints mécaniques et boîtier du stator) 1 signal
80UY44.0 -50 TOS80UY44.0 -50 2 80 Eaux usées 60 6-14 1840 13,80 4,0 3-phase / 400V / 50Hz Double capteur de fuite (chambre des joints mécaniques et boîtier du stator) 1 signal
80UY45.5 -50 TOS80UY45.5 -50 3 80 Eaux usées 60 6-14 2430 16,50 5,5 3-phase / 400V / 50Hz Double capteur de fuite (chambre des joints mécaniques et boîtier du stator) 1 signal
100UY44.0 -50 TOS100UY44.0 -50 4 100 Eaux usées 80 6-14 2650 11,50 4,0 3-phase / 400V / 50Hz Double capteur de fuite (chambre des joints mécaniques et boîtier du stator) 1 signal
100UY45.5 -50 TOS100UY45.5 -50 5 100 Eaux usées 80 6-14 3130 13 5,5 3-phase / 400V / 50Hz Double capteur de fuite (chambre des joints mécaniques et boîtier du stator) 1 signal
100UY411 -50 TOS100UY411 -50 6 100 Eaux usées 100 6-14 3980 22 11,0 3-phase / 400V / 50Hz Double capteur de fuite (chambre des joints mécaniques et boîtier du stator) 1 signal
100UY415 -50 TOS100UY415 -50 7 100 Eaux usées 100 6-14 4250 23.3 15,0 3-phase / 400V / 50Hz Double capteur de fuite (chambre des joints mécaniques et boîtier du stator) 1 signal
ø diamètre de refoulement mm 80
Type de fluide Eaux usées
Granulométrie max (mm) 80
Valeur maximale du pH 6-14
Capacité max. l/min 1660
Hauteur manométrique max. m 11
Puissance du moteur kW 3,0
Phase / Tension 3-phase / 400V / 50Hz
Surveillance Double capteur de fuite (chambre des joints mécaniques et boîtier du stator) 1 signal
ø diamètre de refoulement mm 80
Type de fluide Eaux usées
Granulométrie max (mm) 60
Valeur maximale du pH 6-14
Capacité max. l/min 1840
Hauteur manométrique max. m 13,80
Puissance du moteur kW 4,0
Phase / Tension 3-phase / 400V / 50Hz
Surveillance Double capteur de fuite (chambre des joints mécaniques et boîtier du stator) 1 signal
ø diamètre de refoulement mm 80
Type de fluide Eaux usées
Granulométrie max (mm) 60
Valeur maximale du pH 6-14
Capacité max. l/min 2430
Hauteur manométrique max. m 16,50
Puissance du moteur kW 5,5
Phase / Tension 3-phase / 400V / 50Hz
Surveillance Double capteur de fuite (chambre des joints mécaniques et boîtier du stator) 1 signal
ø diamètre de refoulement mm 100
Type de fluide Eaux usées
Granulométrie max (mm) 80
Valeur maximale du pH 6-14
Capacité max. l/min 2650
Hauteur manométrique max. m 11,50
Puissance du moteur kW 4,0
Phase / Tension 3-phase / 400V / 50Hz
Surveillance Double capteur de fuite (chambre des joints mécaniques et boîtier du stator) 1 signal
ø diamètre de refoulement mm 100
Type de fluide Eaux usées
Granulométrie max (mm) 80
Valeur maximale du pH 6-14
Capacité max. l/min 3130
Hauteur manométrique max. m 13
Puissance du moteur kW 5,5
Phase / Tension 3-phase / 400V / 50Hz
Surveillance Double capteur de fuite (chambre des joints mécaniques et boîtier du stator) 1 signal
ø diamètre de refoulement mm 100
Type de fluide Eaux usées
Granulométrie max (mm) 100
Valeur maximale du pH 6-14
Capacité max. l/min 3980
Hauteur manométrique max. m 22
Puissance du moteur kW 11,0
Phase / Tension 3-phase / 400V / 50Hz
Surveillance Double capteur de fuite (chambre des joints mécaniques et boîtier du stator) 1 signal
ø diamètre de refoulement mm 100
Type de fluide Eaux usées
Granulométrie max (mm) 100
Valeur maximale du pH 6-14
Capacité max. l/min 4250
Hauteur manométrique max. m 23.3
Puissance du moteur kW 15,0
Phase / Tension 3-phase / 400V / 50Hz
Surveillance Double capteur de fuite (chambre des joints mécaniques et boîtier du stator) 1 signal
GENERAL
ø diamètre de refoulement mm 80 - 100
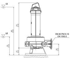
Diamètre de connexion DN 100 EN 1092-2, DN 80 EN 1092-2
Pompage de fluide
Type de fluide Eaux usées
Température 0 - 40°C
Granulométrie max (mm) 60 - 100
Valeur maximale du pH 6-14
Capacité max. l/min 1660 - 4250
Hauteur manométrique max. m 11 - 23.3
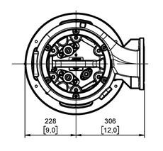
Pompe
Composants
Turbine Turbine Vortex
Garniture mécanique Joint mécanique double dans bain d'huile
MATÉRIEL
Turbine Fonte grise EN-GJL-250
Enveloppe Fonte grise EN-GJL-250
Plaque d'aspiration Fonte grise EN-GJL-250
Corps de pompe Fonte grise EN-GJL-250
Garniture mécanique carbure de silicium
Moteur
Puissance du moteur kW 3,0 - 15,0
Méthode de démarrage directement en ligne, étoile/triangle
Type, pôles Moteur à induction, 4 pôles, IP68
Isolation Classe d'isolation H
Phase / Tension 3-phase / 400V / 50Hz
tr/min 1383 - 1453
Protection moteur Protecteurs thermiques bimétalliques (Klixon) de série
Surveillance Double capteur de fuite (chambre des joints mécaniques et boîtier du stator) 1 signal
Intensité nominal 11.9, 20,5, 30,8, 6,70, 8h40
MATÉRIEL
Arbre AISI 431
Câble S1RN8F 4G1,5 + 3x1, S1RN8F 7G1.5 + 3x1, S1RN8F 7G2.5 + 3x1
Longueur du câble 10 m
Autres
Poids à sec en kg 60 - 189
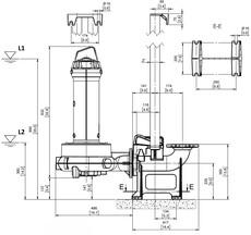
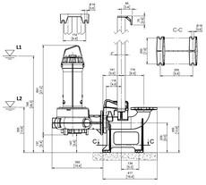
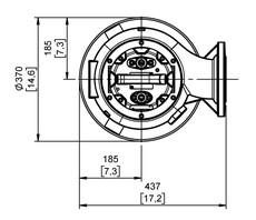
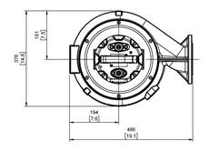
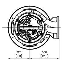
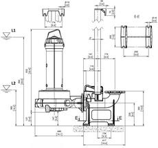
Dimensions - en mm
W1 : niveau d'eau courante le plus bas
  • 100UY44.0 -50
W1 : niveau d'eau courante le plus bas
  • 80UY45.5 -50
W1 : niveau d'eau courante le plus bas
  • 80UY44.0 -50
W1 : niveau d'eau courante le plus bas
  • 80UY43.0 -50
W1 : niveau d'eau courante le plus bas
  • 100UY415 -50
W1 : niveau d'eau courante le plus bas
  • 100UY411 -50
W1 : niveau d'eau courante le plus bas
  • 100UY45.5 -50
ModelA
80UY43.0 -50-
80UY44.0 -50-
80UY45.5 -50-
100UY44.0 -50-
100UY45.5 -50-
100UY411 -50-
100UY415 -50-
Dimensions - en mm
  • 100UY415 -50
W1 : niveau d'eau courante le plus bas
  • 100UY411 -50
W1 : niveau d'eau courante le plus bas
  • 100UY45.5 -50
W1 : niveau d'eau courante le plus bas
  • 100UY44.0 -50
W1 : niveau d'eau courante le plus bas
  • 80UY45.5 -50
W1 : niveau d'eau courante le plus bas
  • 80UY44.0 -50
W1 : niveau d'eau courante le plus bas
  • 80UY43.0 -50
W1 : niveau d'eau courante le plus bas
ModelA
80UY43.0 -50-
80UY44.0 -50-
80UY45.5 -50-
100UY44.0 -50-
100UY45.5 -50-
100UY411 -50-
100UY415 -50-

La série UY est conçue pour le pompage des eaux usées domestiques, municipales et industrielles, y compris les matières fécales et les boues. Elle traite les fluides contenant des grosses particules et des fibres, ce qui la rend idéale pour les environnements complexes et exigeants.

Équipée d'une roue vortex et d'un passage libre, la série UY garantit une sécurité de fonctionnement maximale en empêchant le colmatage et en permettant un écoulement fluide des solides.

Applications appropriées : eaux usées, relevages domestique et industriel, stations d'épuration domestiques et agricoles, etc.